750,- €/mes. 22.594,50 Sk/mes.
sledovať ponuku Prenájom: 3 izbový zariadený byt v Ružinove - Bystrého ulica
Štát: Slovensko
Okres: Bratislava - Ružinov
Mesto: Bratislava - Ružinov
Ulica: Bystrého
Vlastníctvo: osobné
Druh:
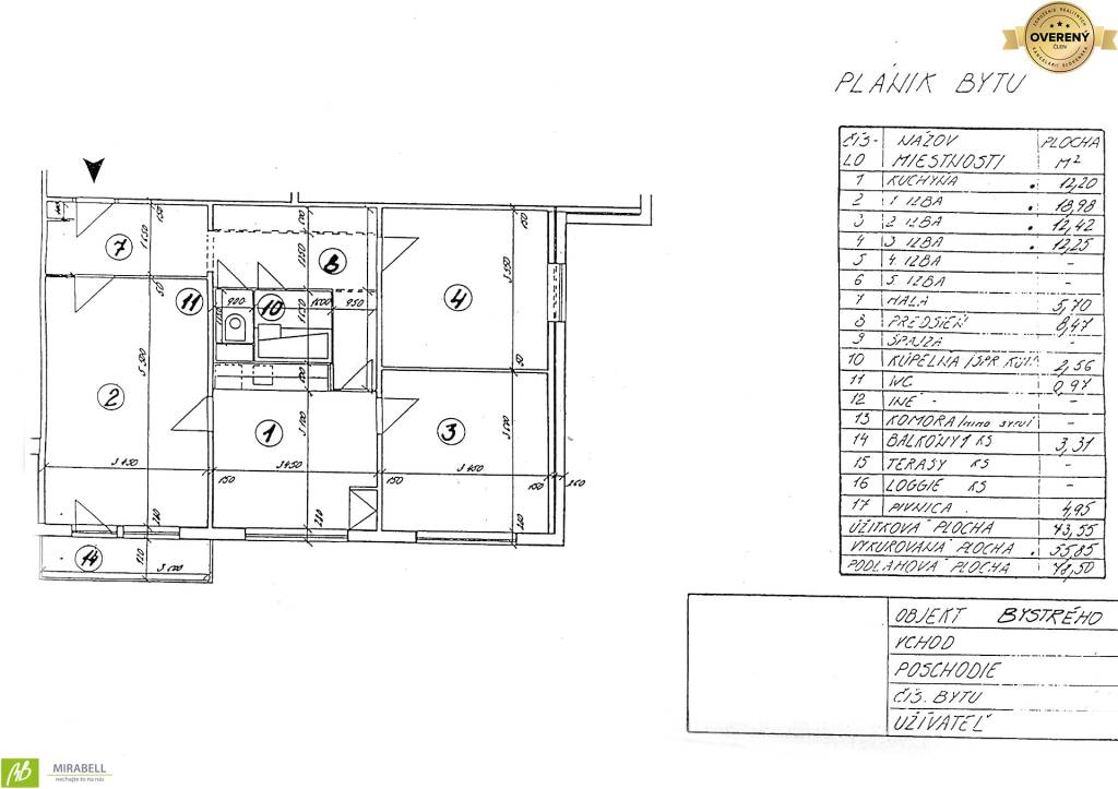
3-izbový byt
Typ:
prenájom
| Poschodie | 1 |
| Počet poschodí | 3 |
| Počet izieb | 3 |
| Celková rozloha | 81.81 m² |
| Úžitková plocha | 81.81 m² |
| Vlastníctvo | osobné |
| Stav | pôvodný |
| Status | aktívne |
| Odvoz odpadu | áno |
| Plyn | áno |
| Kúpeľňa | vaňa |
| Vykurovanie | spoločné |
| Balkón | 3.31 m² |
| Pivnica | áno |
| Výťah | nie |
| Parkovanie | verejné |
| Postavené z | panel |
| Zariadenie | zariadený |
| Zateplený objekt | áno |
| Energetický certifikát | B |
| Bezbariérový prístup | nie |
| Okná | plastové |
Ponúkame na prenájom 3 izbový byt v mestskej časti Bratislava - Ružinov na Bystrého ulici. Nachádza sa na 1. poschodí /3 poschodového zatepleného panelového bytového domu bez výťahu.
Výmera bytu je 81,81 m2. K bytu prislúcha aj zasklený balkón o výmere 3,31 m2.
Byt je k dispozícii zariadený so spotrebičmi s dostatkom úložného priestoru ako je vyobrazené na fotografiách a bude novo vymaľovaný.
Lokalita:
Bytový dom sa nachádza v tichej lokalite Ružinova pri obchodnom reťazci Lidl. Zástavka MHD sa nachádza v blízkosti bytového domu cca 300 m.
K dispozícii ihneď.
Cena prenájmu je 750,- EUR/ mes. vrátane energií (1-2 osoby). Každá ďalšia osoba + 30,- EUR.
Záujemca hradí depozit vo výške jednomesačného nájmu a províziu pre RK vo výške 1/2 jednomesačného nájmu.
Kontakt: Nikola Hajdinová, 0948 122 336, info@mirabell.sk.
Všetky naše aktuálne ponuky si môžete pozrieť na našej stránke www.reality.mirabell.sk















