135.000,- € 4.067.010,- SKK
vrátane provízievrátane provízie
sledovať ponuku Zrekonštruovaný nebytový priestor (1 izbový byt) vo výbornej lokalite
Štát: Slovensko
Okres: Bratislava - Staré Mesto
Mesto: Bratislava - Staré Mesto
Ulica: Krížna
Vlastníctvo: firemné
Druh:
1-izbový byt
Typ:
predaj
| Cena | vrátane provízie |
| Poschodie | podzemie |
| Počet poschodí | 5 |
| Počet izieb | 1 |
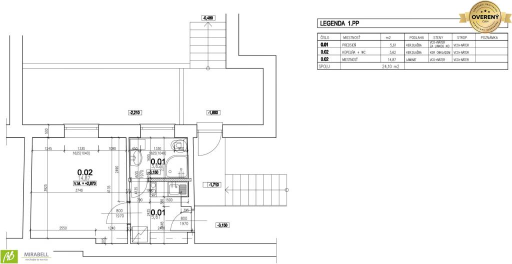
| Celková rozloha | 24.1 m² |
| Úžitková plocha | 24.1 m² |
| Vlastníctvo | firemné |
| Stav | úplne prerobený |
| Status | aktívne |
| Plyn | nie |
| Kúpeľňa | áno |
| Vykurovanie | vlastné - elektrické |
| Parkovanie | verejné |
| Zariadenie | nezariadený |
| Zateplený objekt | áno |
| Bezbariérový prístup | nie |
| Okná | plastové |
Ponúkame na predaj kompletne zrekonštruovaný nebytový priestor v mestskej časti Bratislava - Staré Mesto na Krížnej ulici.
Priestor je zrekonštruovaný ako 1 izbový byt a dispozične pozostáva zo vstupnej chodby s kuchynkou, z ktorej sa ďalej vstupuje do kúpeľne so sprchovým kútom a toaletou a miestnosti. Nachádza v suteréne bytového domu a je o celkovej výmere 24,10 m2. Veľké okná sú orientované do vnútrobloku s možnosťou využívať vlastnú terasu vo vnútrobloku viď foto vizualizácie, ako môže terasa po úprave vyzerať.
Pozemok pod domom je v spoluvlastníctve vlastníkov bytov v dome. Kúrenie je samostatné elektrickými radiátormi.
Lokalita:
Krížna ulica je z jedným hlavných mestských ciev v Bratislave, ktorá spája historické centrum s obytnými a obchodnými zónami. Výborná lokalita disponuje kompletnou občianskou vybavenosťou.
Cena nehnuteľnosti je 135.000,- EUR.
Cena je celková vrátane provízie pre RK, ktorá zahŕňa: vyhotovenie rezervačnej zmluvy alebo ZBZ, vyhotovenie kúpnej zmluvy a návrhu na vklad vlastníckeho práva do katastra nehnuteľností, autorizácia podpisov predávajúceho/ich na kúpnej zmluve, katastrálny poplatok za štandardný vklad vlastníckeho práva do katastra, preberací protokol. Zabezpečíme kompletné hypotekárne poradenstvo našim hypotekárnym špecialistom.
Kontakt: Mária Fischer, tel. č.: 0948 122 336, e-mail: info@mirabell.sk
Ďalšie ponuky si môžete pozrieť na našej stránke: www.reality.mirabell.sk










